Landlord:Uptown Square Apartments
Address:252 N Lauderdale St, Memphis, TN 38105
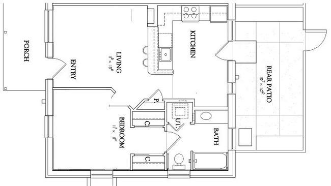
Layout
0 bed, 0 bath, 257 sqft
Pets
NO
Unit Features:
Rent Facts:
$1969
1 beds
$719
$550
3 beds