Landlord:Valley Forge Towers North
Address:3000 Valley Forge Cir, King Of Prussia, PA 19406
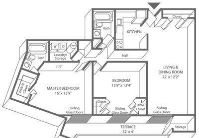
Layout
2 beds, 2 baths, 1504 sqft
Pets
NO
Unit Features:
Rent Facts:
$1350
1 beds
$750
2 beds
$710